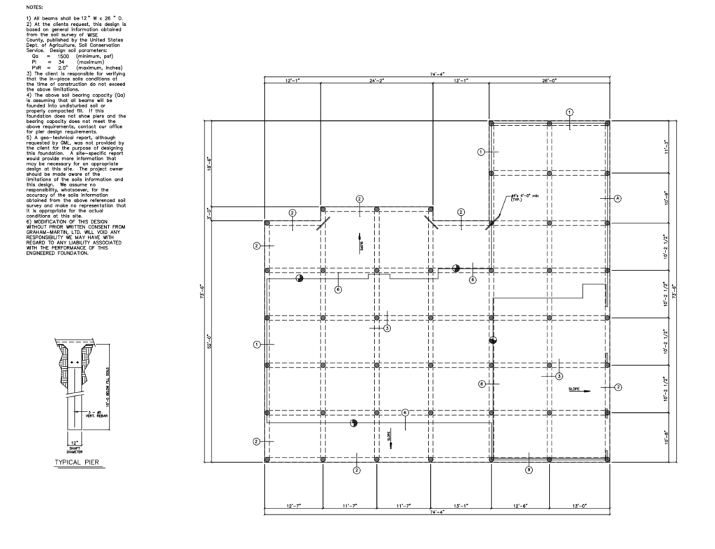
Building Vertical piers under the slab
Depending on the Engineer's requirements on each location we drill piers 12 to 18 feet deep. Add re-bar and fill with 3500psi concrete to stop just at the beams that will be prepared for the slab. The slab will actually rest on top of these piers. This is very important to keep your home from shifting. The diagram shown here has circles indicating on the floor plans where the piers will be located and drilled prior to the slab.
This gives you the very best foundation.

